КП 2

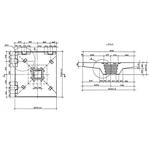
Чертеж изделия:
Характеристики изделия:
ПараметрЗначение
длина2670 мм
ширина2980 мм
высота600 мм
масса4530 кг
нормативный документГОСТ 27108-86

КП 2  Капители колонн ГОСТ 27108-86.