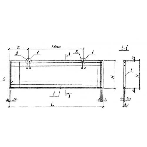
ПГ 60.12 панели перегородки
Характеристики изделия:
| Параметр | Значение |
|---|---|
| длина | 5980 мм |
| ширина | 80 мм |
| высота | 1185 мм |
| масса | 710 кг |
| нормативный документ | Серия 1.030.9-2 |
Цена:
Рассчитать стоимостьПГ 60.12 Перегородки панельные зданий промышленных и сельскохозяйстыенных предприятий Серия 1.030.9-2.
