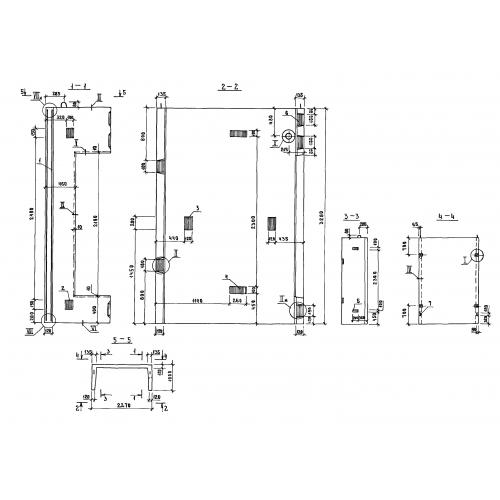
БШЛ 63-33 блок шахты лифта основной

Чертеж изделия:
Характеристики изделия:
ПараметрЗначение
длина2270 мм
ширина1000 мм
высота3280 мм
масса3700 кг
нормативный документСерия 1.089.1-1

БШЛ 63-33 Блоки шахт лифтов Серия 1.089.1-1.