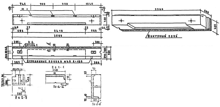
НБ-36.4.5Пл

Чертеж изделия:
Характеристики изделия:
ПараметрЗначение
Длина3580 мм
Ширина500 мм
Высота420 мм
Масса1335 кг
Нормативный документСерия 1.133-1

Стеновые легкобетонные блоки толщиной 50 см по Серии 1.133-1.

НБ-36.4.5Пл  Перемычечный блок.