П 45.9.30
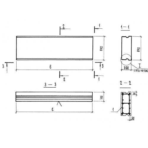
Характеристики изделия:
| Параметр | Значение |
|---|---|
| длина | 4470 мм |
| ширина | 890 мм |
| высота | 300 мм |
| вес | 860 кг |
| серия | 1.165.1-10 |
Цена:
Рассчитать стоимостьП 45.9.30 Панели покрытия по серии 1.165.1-10.
| Параметр | Значение |
|---|---|
| длина | 4470 мм |
| ширина | 890 мм |
| высота | 300 мм |
| вес | 860 кг |
| серия | 1.165.1-10 |
П 45.9.30 Панели покрытия по серии 1.165.1-10.
