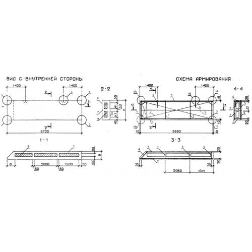
ПСТ 57.21.3.5 панели стеновые

Чертеж изделия:
Характеристики изделия:
ПараметрЗначение
длина5700 мм
ширина350 мм
высота2085 мм
масса4750 кг
нормативный документСерия 1.232.1-7

ПСТ 57.21.3.5  Панели стеновые трехслойные (рядовые для внутренних углов зданий) Серия 1.232.1-7.