П 10
Характеристики изделия:
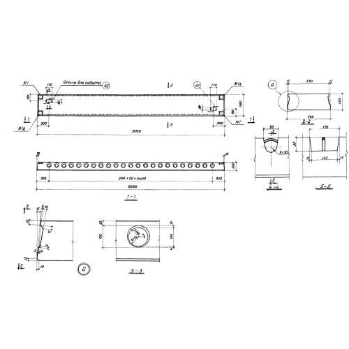
| Параметр | Значение |
|---|---|
| длина | 5050 мм |
| ширина | 590 мм |
| высота | 220 мм |
| вес | 1700 кг |
| серия | 1.440-1 |
Цена:
Рассчитать стоимостьП 10 Плиты ребристые по серии 1.440-1.
| Параметр | Значение |
|---|---|
| длина | 5050 мм |
| ширина | 590 мм |
| высота | 220 мм |
| вес | 1700 кг |
| серия | 1.440-1 |
П 10 Плиты ребристые по серии 1.440-1.
