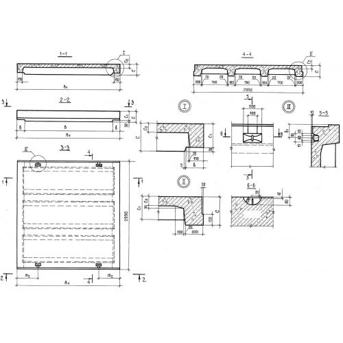
ПТ 30

Чертеж изделия:
Характеристики изделия:
ПараметрЗначение
длина2990 мм
ширина3400 мм
высота320 мм
масса1350 кг
нормативный документСерия 3.006.1-3/83

ПТ 30  Плиты перекрытия тоннелей Серия 3.006.1-3/83.