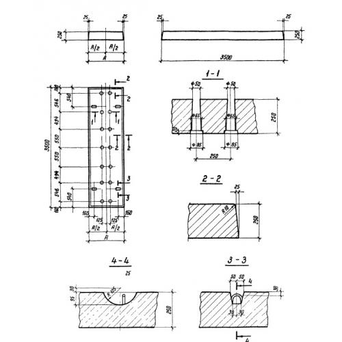
ПФ 35.15
Характеристики изделия:
| Параметр | Значение |
|---|---|
| длина | 3500 мм |
| ширина | 1500 мм |
| высота | 250 мм |
| вес | 3280 кг |
| серия | 3.407.1-148 |
Цена:
Рассчитать стоимостьПФ 35.15 Плиты фундаментные по серии 3.407.1-148.
| Параметр | Значение |
|---|---|
| длина | 3500 мм |
| ширина | 1500 мм |
| высота | 250 мм |
| вес | 3280 кг |
| серия | 3.407.1-148 |
ПФ 35.15 Плиты фундаментные по серии 3.407.1-148.
