ФК

Чертеж изделия:
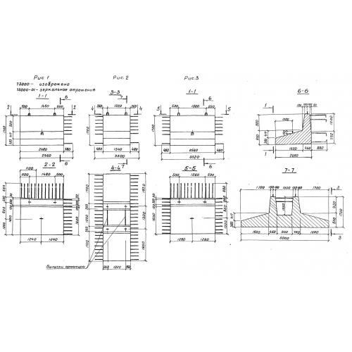
Характеристики изделия:
ПараметрЗначение
длина2960 мм
ширина2630 мм
высота1720 мм
вес10300 кг
серия3.503.1-53

ФК  Блоки фундамента крайние по серии 3.503.1-53.