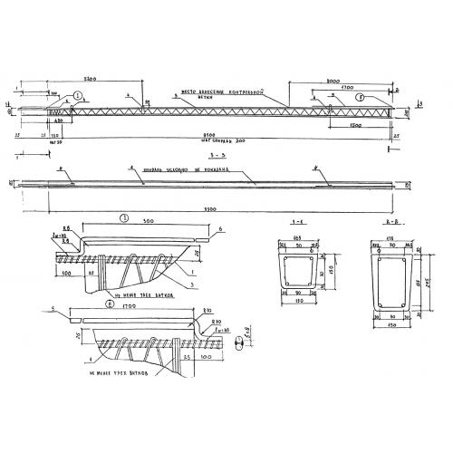
СВ 95

Чертеж изделия:
Характеристики изделия:
ПараметрЗначение
длина9500 мм
ширина175 мм
высота245 мм
вес750 кг
серия3.507 КЛ-10

СВ 95 Стойки вибрированные по серии 3.507 КЛ-10.