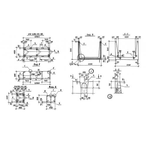
ЛК 98.115.90

Чертеж изделия:
Характеристики изделия:
ПараметрЗначение
длина980 мм
ширина1150 мм
высота900 мм
вес700 кг
серия3.818.9-2

ЛК 98.115.90 Лотки для каналов навозоудаления по серии 3.818.9-2.