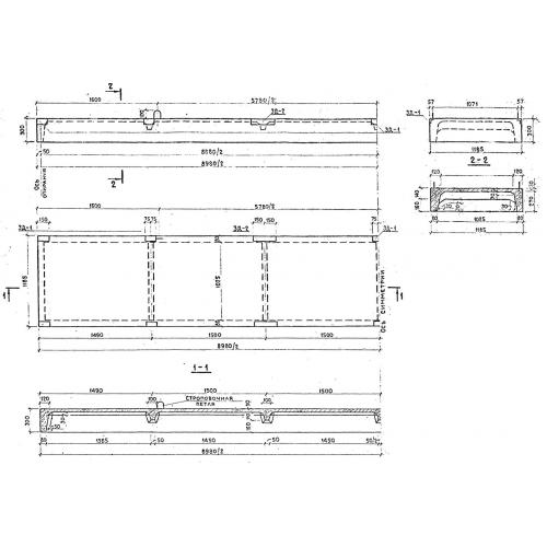
П-90 плита пешеходного мостика
Характеристики изделия:
| Параметр | Значение |
|---|---|
| длина | 8980 мм |
| ширина | 1185 мм |
| высота | 300 мм |
| масса | 2320 кг |
| нормативный документ | Серия 3.820-13 |
Цена:
Рассчитать стоимостьП-90 Плиты пешеходных мостиков по Серии 3.820-13.
| Параметр | Значение |
|---|---|
| длина | 8980 мм |
| ширина | 1185 мм |
| высота | 300 мм |
| масса | 2320 кг |
| нормативный документ | Серия 3.820-13 |
П-90 Плиты пешеходных мостиков по Серии 3.820-13.
