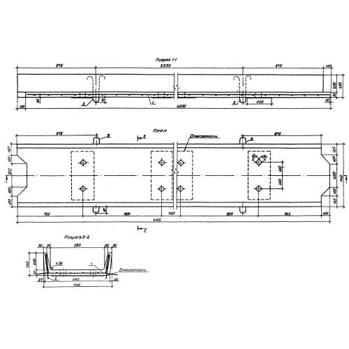
ЛРО 6.40

Чертеж изделия:
Характеристики изделия:
ПараметрЗначение
длина4100 мм
ширина740 мм
высота280 мм
масса700 кг
нормативный документСерия 3.820.1-69

ЛРО 6.40 Лотки с разгрузочными отверстиями по Серии 3.820.1-69.