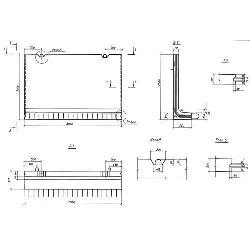
Г 20.30

Чертеж изделия:
Характеристики изделия:
ПараметрЗначение
длина3000 мм
ширина780 мм
высота2000 мм
вес2880 кг
серия3.820.1-73

Г 20.30 Г-образная конструкция для водохозяйственного строительства по серии 3.820.1-73.