ПСТ 2

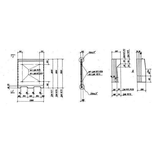
Чертеж изделия:
Характеристики изделия:
ПараметрЗначение
длина2980 мм
ширина2750 мм
высота200 мм
вес3200
серияИС-01-05

ПСТ 2 Плиты стеновые по серии ИС-01-05.