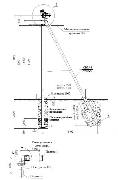
УА 30

Чертеж изделия:
Характеристики изделия:
ПараметрЗначение
длина9100 мм
ширина185 мм
высота265 мм
масса900 кг
нормативный документШифр 26.0085

УА 30   Угловые анкерные двухцепные опоры Шифр 26.0085.