12 ДД
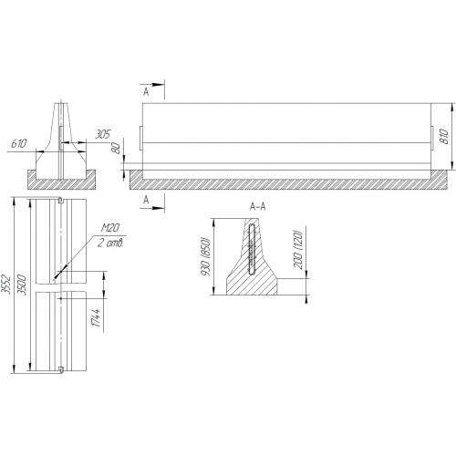
Характеристики изделия:
| Параметр | Значение |
|---|---|
| длина | 3552 мм |
| ширина | 610 мм |
| высота | 850 мм |
| масса | 2700 кг |
| нормативный документ | ТУ 5899-002-61548960-2010 |
Цена:
Рассчитать стоимость12 ДД Блоки парапетного двухстороннего стационарного ограждения по ТУ 5899-002-61548960-2010.
