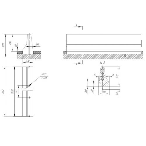
12 МО

Чертеж изделия:
Характеристики изделия:
ПараметрЗначение
длина3552 мм
ширина500 мм
высота1070 мм
масса4000 кг
нормативный документТУ 5899-002-61548960-2010

12 МО  Блоки  парапетного одностороннего ограждения мостовой группы по ТУ 5899-002-61548960-2010.